The Cottages
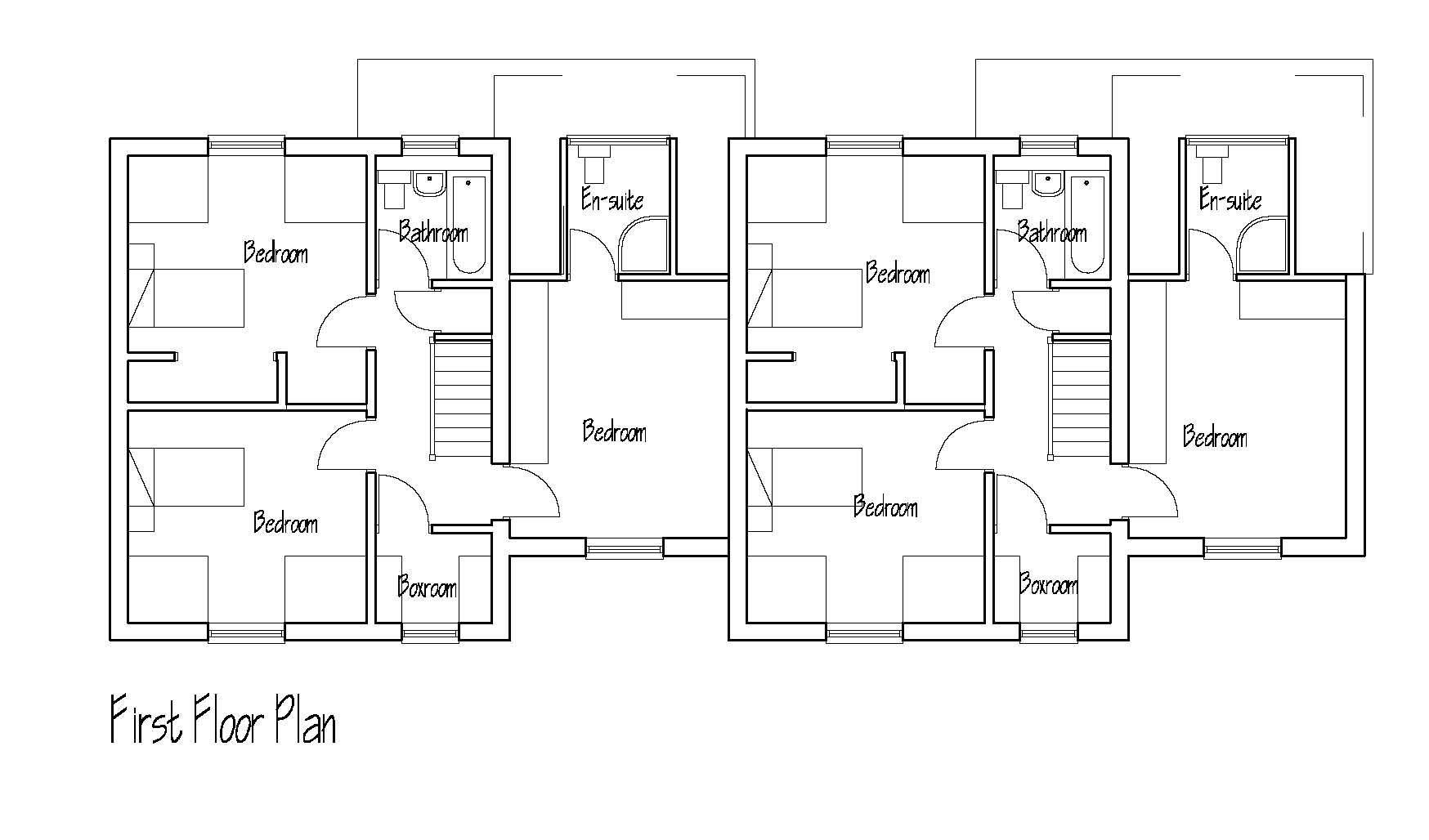
The cottages are two three-bed properties, each re-developed to an expectionally high standard and situated within their own grounds. Landscaped gardens to the front and rear.
Pictures of the completed work - Click Here

The cottages are two three-bed properties, each re-developed to an expectionally high standard and situated within their own grounds. Landscaped gardens to the front and rear.
Pictures of the completed work - Click Here