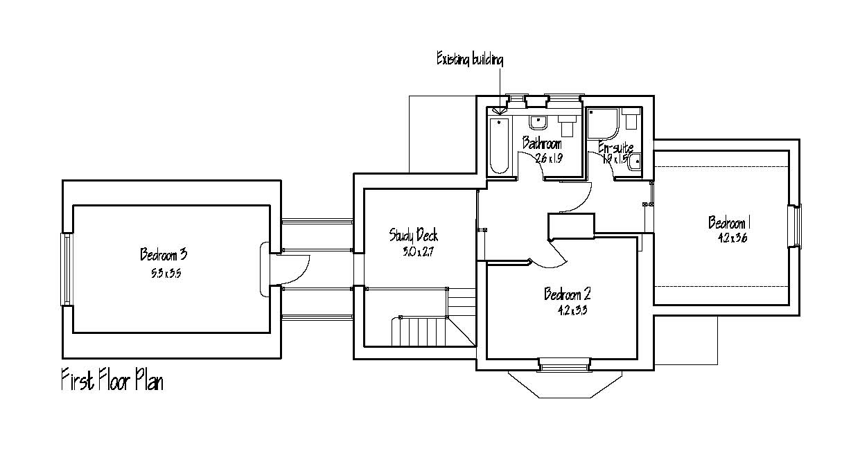
Danescourt Lodge
Dating back to 1860's Danescourt Lodge is an impressive, character building. It stands proud at the entrance of the site and is situated with extensive gardens. It has it's own private driveway and the main building has been extended for all contemporary amenities.
Pictures of the completed work - Click Here

